Reiknaðu áætlaðar mánaðarlegar greiðslur
Spánarheimili kynnir: Lúxus villur á hinu glæsilega íbúðarsvæði Santa Rosalía. Einstakt svæði með stærsta manngerða lóni í Evrópu. Svæðið er í mikilli uppbyggingu en Santa Rosalía er staðsett á Costa Cálida ströndinni sem er í um 20 mín. akstursfjarlægð frá Torreviejasvæðinu. Bærinn Los Alcázares er í gögngufæri og þar er meðal annars að finna úrval veitingastaða, matvörubúðir og alla þá þjónustu sem hægt er að hugsa sér.
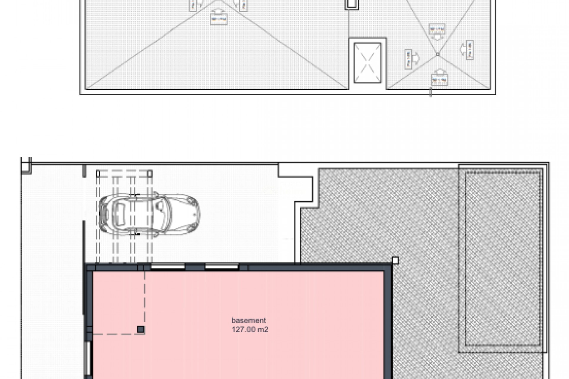
Um er að ræða 6 glæsivillur en 3 eru nú þegar seldar. Einstaklega vel hönnuð og nútímaleg einbýli á tveimur hæðum með einkasundlaug, þaksvölum og bílastæði inni á lóðinni. Einnig er stór og rúmgóður kjallari í hverri eign. Villurnar eru á bilinu 329fm - 347fm.
Gengið er inn í stóra og bjarta forstofu. Þegar lengra er farið inn í húsið blasir við þér glæsilegt eldhús með nóg af skápaplássi en opið er frá eldhúsi inn í stofu og borðstofu. Inn af eldhúsinu er rúmgott þvottahús. Frá stofunni er gengið út á veröndina en þar er 21 fm einkasundlaug og stigi upp á 56 fm þaksvalir þar sem hægt er að njóta sólarinnar allan daginn, allt árið.
Master svítan er rúmlega 21 fm stór en þar er einkabaðherbergi og stór walk-in fataskápur. Hin 2 svefnherbergin eru bæði með einkabaðherbergi og innbyggða fataskápa með meira en nóg af plássi. Þegar gengið er stigann niður í kjallara blasir við rúmlega 150 fm rými sem býður upp á marga möguleika og þar er annað baðherbergi.
Verð frá 780.000-935.000. Innifalið í verði er loftkæling, raftæki í eldhús ásamt þvottavél og þurrkara. Gólfhiti á baðherbergjum. Húsið er afhent með pre-uppsetningu á hitunarkerfi fyrir sundlaugina. Á þaksvölum er gengið frá því þannig að allt er tilbúið fyrir uppsetningu á útieldhúsi og heitum pott.
Virkilega flottar eignir og kaup á eign í Santa Rosalía er góð fjárfesting á einstöku svæði.
Meira hægt að sjá um svæðið hér: https://spanarheimili.is/santarosalia/
Allar nánari upplýsingar eru gefnar á skrifstofu Spánarheimili og í síma 5585858 og info@spanarheimili.is